新昌信息港

 找回密码
 立即注册

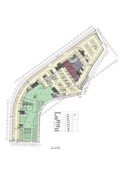
总用地面积23824.5平!如城将建设地下商业区,公告已发布!

查看数: 9771 | 评论数: 42 | 收藏 0
关灯 | 提示:支持键盘翻页<-左 右->
    组图打开中,请稍候......
发布时间: 2023-9-26 08:10

正文摘要:

建设工程规划批前公示 申请人新昌县东门如城有限公司向本局提出建设工程规划许可申请,现予以批前公示。具体图纸公示在新昌县规划公示展示中心(规划公示展示中心地址:新昌县江滨西路588号建业大厦一楼),公 ...

回复

上王井人来自:浙江省 发表于 2023-9-27 22:53:03
小新昌有几颗侬,不是革头热闹了就是那头冷落了!
闺蜜变小三来自:浙江省 发表于 2023-9-27 22:28:27
天阔 发表于 2023-09-27 18:41
人口在哪里?生的少,好的还跑了。剩下的韭菜也没几根了。


闺蜜变小三来自:浙江省 发表于 2023-9-27 18:52:41
又是一个业绩,其他的随便,
天阔来自:浙江省 发表于 2023-9-27 18:41:08
人口在哪里?生的少,好的还跑了。剩下的韭菜也没几根了。
放风筝的人呀来自:浙江省 发表于 2023-9-27 10:13:02
非常不错。按耐不住激动的心
正宗山里农民来自:浙江省 发表于 2023-9-27 10:05:01
当自己是in77呢
瞎侃瞎话来自:浙江省 发表于 2023-9-27 09:29:23
地上地下还要分开搞,是不是没了
山水行来自:浙江省 发表于 2023-9-26 18:38:58
人都少了,商场在地下有啥子引力
痴史来自:浙江省 发表于 2023-9-26 17:42:30
全是些外面玩腻了的丢给新昌,
的黎波里来自:浙江省 发表于 2023-9-26 17:26:24
真的好坑啊
艺术之人来自:浙江省 发表于 2023-9-26 16:40:56
骗过来 骗过去
梁山子来自:浙江省 发表于 2023-9-26 14:20:35
人口呢?
再接再厉来自:中国 发表于 2023-9-26 13:54:06
谁家没有车,呵呵呵。有钱有闲有心情,还会专门来你这个犄角旮旯,杭州上海的不香啊?
午夜幽蓝1来自:浙江省 发表于 2023-9-26 13:20:31
咋乱星星来自:浙江省 发表于 2023-9-26 12:40:20
别人都搞的不要搞了,
不容易来自:浙江省 发表于 2023-9-26 11:35:01
鼓山顶上看月亮来自:浙江省 发表于 2023-9-26 11:27:09
怎么要把关闭的商场都搞到东门如城来。难听死了
请叫我雷蜂来自:中国 发表于 2023-9-26 11:09:34
绍兴城市广场的地下商场,现在都关完了!
大飞来自:浙江省 发表于 2023-9-26 10:14:18
300长,200宽?能摆几间?
 

| QQ| 服务条款|关于我们|小黑屋|天姥论坛 ( 浙ICP备2021020645号 )

浙公网安备 33062402000133号 GMT+8, 2026-3-21 07:55 , Processed in 0.198233 second(s), 24 queries , Redis On.

Powered by zjxc.com

© 2003-2026新昌信息港

客户端下载 快速回复 返回顶部 返回列表