新昌信息港

 找回密码
 立即注册

总用地面积超6000平!新昌这一区域又有新项目,批前公示已出

查看数: 10617 | 评论数: 19 | 收藏 0
关灯 | 提示:支持键盘翻页<-左 右->
    组图打开中,请稍候......
发布时间: 2024-3-1 08:15

正文摘要:

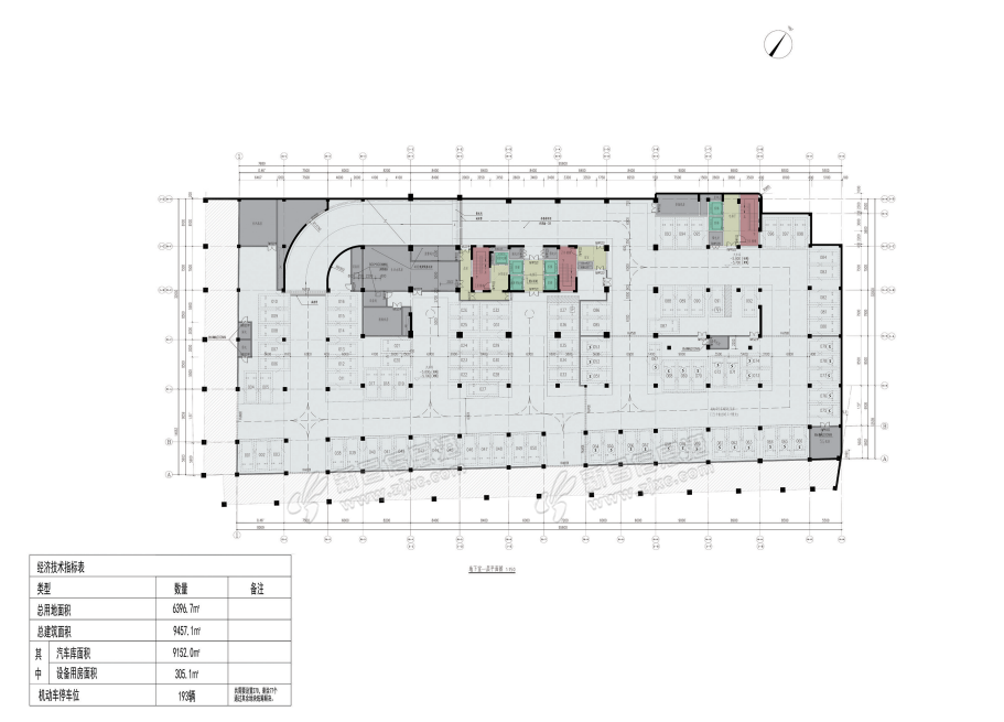
申请人新昌县东门如城有限公司向本局提出建设工程规划许可申请,现予以批前公示。具体图纸公示在新昌县规划公示展示中心(新昌县江滨西路588号建业大厦一楼),公示日期为2024年3月1日至3月10日。 建设情 ...

回复

神棍兄来自:浙江省 发表于 2024-3-3 10:15:01

听说是配套银泰的地下停车场。不知道是真是假。如城不大,也没广场计划,大概率不会错。
神棍兄来自:浙江省 发表于 2024-3-3 10:13:19

听说就是银泰地下停车场。
太阳星星月亮来自:浙江省 发表于 2024-3-1 13:14:00
星河入梦安来自:浙江省 发表于 2024-3-1 13:13:50
望鸣谷川来自:浙江省 发表于 2024-3-1 13:12:45
何三姐来自:浙江省 发表于 2024-3-1 13:08:49
这停车场挺大
很爱吃烤肉来自:浙江省 发表于 2024-3-1 13:08:36
风吹未眠来自:浙江省 发表于 2024-3-1 13:07:59
以后周边停车方便了
芝士一只羊来自:浙江省 发表于 2024-3-1 13:07:54
梁奕成来自:浙江省 发表于 2024-3-1 13:02:27

收费蛮肯定的,有可能价格会跟东镇康乐差不多
溪桥新柳白鹭飞来自:浙江省 发表于 2024-3-1 10:55:30
有进展就行
光伏荣耀来自:浙江省 发表于 2024-3-1 10:35:26
要收费的吧
话语投影仪来自:浙江省 发表于 2024-3-1 10:33:57
池上水花微谢来自:浙江省 发表于 2024-3-1 10:32:47
可米爱西西来自:浙江省 发表于 2024-3-1 10:32:34
水热毯规范来自:浙江省 发表于 2024-3-1 10:32:11
停车场不错的 现在车子太多了
就想晒晒风来自:浙江省 发表于 2024-3-1 10:31:38
又有新的进展古
桃汁来自:浙江省 发表于 2024-3-1 10:07:48
放风筝的人呀来自:浙江省 发表于 2024-3-1 09:06:39
停车场不错。很需要
 

| QQ| 服务条款|关于我们|小黑屋|天姥论坛 ( 浙ICP备2021020645号 )

浙公网安备 33062402000133号 GMT+8, 2025-11-19 00:29 , Processed in 0.138623 second(s), 23 queries , Redis On.

Powered by zjxc.com

© 2003-2025新昌信息港

客户端下载 快速回复 返回顶部 返回列表