新昌信息港

 找回密码
 立即注册

设计图出炉!新昌未来将新建一地下空间(停车),地点就在...

查看数: 15390 | 评论数: 21 | 收藏 0
关灯 | 提示:支持键盘翻页<-左 右->
    组图打开中,请稍候......
发布时间: 2024-5-10 13:58

正文摘要:

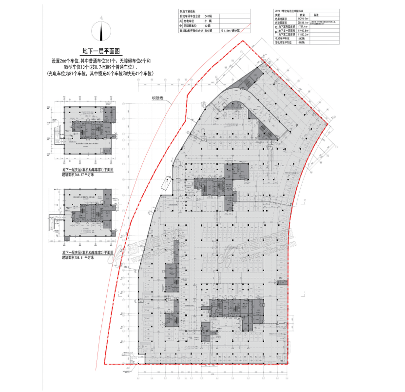
申请人新昌县东门如城有限公司向本局提出建设工程规划许可申请,现予以批前公示。具体图纸公示在新昌县规划公示展示中心(规划公示展示中心地址:新昌县江滨西路588号建业大厦一楼),公示日期为2024年5月10日 ...

回复

不张记性来自:浙江省 发表于 2024-5-11 14:22:37
如城以后变鬼城
就是看看来自:浙江省 发表于 2024-5-11 09:45:46
三猪一狼来自:浙江省 发表于 2024-5-11 08:25:26
放风筝的人呀来自:浙江省 发表于 2024-5-11 08:02:18
神棍兄 发表于 2024-05-10 19:42
可能的银泰地下停车场吧。看如城那工地都是没日没夜的干活,为怎么那么急着赶工期?

的确有点上发条了。我在城区都能听到挖机掘石头的声音
ヒカル(Hikaru)来自:浙江省 发表于 2024-5-11 06:52:19
羽球 发表于 2024-05-10 22:10
眼光太近,规划太小,小打小闹。

你眼光远,县长应该让你当。
午夜游民来自:中国 发表于 2024-5-11 05:08:23
旅游不像旅游城市,工业强镇又排不上,没经济消费,再多商场多圈地
何嘎嘎来自:浙江省 发表于 2024-5-10 22:43:10
故事我忘了来自:浙江省 发表于 2024-5-10 22:43:03
可以的 哈哈
芹川来自:浙江省 发表于 2024-5-10 22:41:53
念念叨叨好多年了
张兔叽来自:浙江省 发表于 2024-5-10 22:38:01
也没多大花头么
梦着又瘦了来自:浙江省 发表于 2024-5-10 22:37:35
十三亿少男的梦来自:浙江省 发表于 2024-5-10 22:37:33
斋藤小甜鸟来自:浙江省 发表于 2024-5-10 22:37:26
羽球来自:中国 发表于 2024-5-10 22:10:15
眼光太近,规划太小,小打小闹。
面朝大海来自:浙江省 发表于 2024-5-10 21:55:38
才20亩,小了。
风儿的吻来自:浙江省 发表于 2024-5-10 21:50:34
神棍兄 发表于 2024-05-10 19:42
可能的银泰地下停车场吧。看如城那工地都是没日没夜的干活,为怎么那么急着赶工期?

央**要过路
xc角落之歌来自:浙江省 发表于 2024-5-10 21:13:34
吕枭一来自:浙江省 发表于 2024-5-10 20:44:01
又可以探铅
神棍兄来自:中国 发表于 2024-5-10 19:42:32
可能的银泰地下停车场吧。看如城那工地都是没日没夜的干活,为怎么那么急着赶工期?

点评

的确有点上发条了。我在城区都能听到挖机掘石头的声音  详情 回复 发表于 2024-5-11 08:02
央**要过路  详情 回复 发表于 2024-5-10 21:50
每一分钟都是GDP。  发表于 2024-5-10 20:20
 

| QQ| 服务条款|关于我们|小黑屋|天姥论坛 ( 浙ICP备2021020645号 )

浙公网安备 33062402000133号 GMT+8, 2025-11-18 18:52 , Processed in 0.233308 second(s), 24 queries , Redis On.

Powered by zjxc.com

© 2003-2025新昌信息港

客户端下载 快速回复 返回顶部 返回列表