新昌信息港

 找回密码
 立即注册

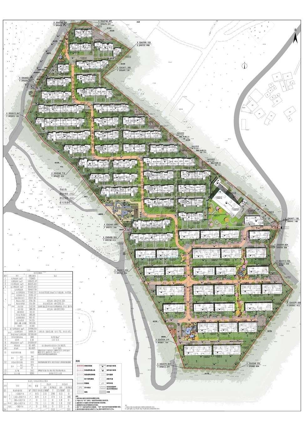
总建筑面积近12万平!新昌这个楼盘有新消息,平面图速戳

查看数: 7898 | 评论数: 23 | 收藏 0
关灯 | 提示:支持键盘翻页<-左 右->
    组图打开中,请稍候......
发布时间: 2025-9-23 08:57

正文摘要:

新昌县心景置业有限公司开发的凤栖庄园位于新昌县沃洲镇西山村2020年经23号、大市聚区块(C地块),新昌县心景置业有限公司向我局提出申请进行局部变更。具体变更图纸公示在新昌县规划公示展示中心(新昌县江滨西路5 ...

回复

关照福地来自:浙江省 发表于 2025-9-24 06:25:16
消灭闲地、荒野跟消费者没多大的关系哦
吴悟来自:浙江省 发表于 2025-9-23 17:04:08
目前是难销了
弱弱来自:浙江省 发表于 2025-9-23 16:58:33
可能是改了一下名称和新的房产公司接盘了?
奋起来自:浙江省 发表于 2025-9-23 16:42:33
烂地方,送给我都不要
石城傲云来自:浙江省 发表于 2025-9-23 15:27:49
搞了半天还是西山不到那个地方啊,建了N年了,还没建好。。。
流浪的蝌蚪来自:浙江省 发表于 2025-9-23 15:15:44
你太xctv了来自:浙江省 发表于 2025-9-23 14:47:25
西山那个青云里不是已经烂尾了么?
孙家妞妞来自:浙江省 发表于 2025-9-23 14:42:50
是不是以前那个烂尾楼,有个宸字的
关照福地来自:浙江省 发表于 2025-9-23 13:24:39
建起来卖不了还不如不建呢
正在加载....来自:浙江省 发表于 2025-9-23 11:48:04
别墅式,在527国道上面一点点
揽月亮入梦来自:浙江省 发表于 2025-9-23 10:04:54
建的多了房价会便宜些吗
听风行来自:浙江省 发表于 2025-9-23 10:01:59
这在哪个地方啊
念而不舍来自:浙江省 发表于 2025-9-23 10:00:51
又是新楼盘
知渔来自:浙江省 发表于 2025-9-23 09:58:03
面积还挺大的呢
请你多喝水来自:浙江省 发表于 2025-9-23 09:53:58
11层高的楼盘古
肚子咕噜叫来自:浙江省 发表于 2025-9-23 09:53:56
平面图看着还可以古,可惜没钱
颓废烤肉来自:浙江省 发表于 2025-9-23 09:52:09
这小区又是什么小区,没听说过啊
百香果柠檬精来自:浙江省 发表于 2025-9-23 09:49:09
那个位置房价多少?
你说不吃鱼来自:浙江省 发表于 2025-9-23 09:49:07
现在房子建出来还有人买吗?
 

| QQ| 服务条款|关于我们|小黑屋|天姥论坛 ( 浙ICP备2021020645号 )

浙公网安备 33062402000133号 GMT+8, 2025-11-16 23:49 , Processed in 0.135285 second(s), 22 queries , Redis On.

Powered by zjxc.com

© 2003-2025新昌信息港

客户端下载 快速回复 返回顶部 返回列表